Project

Tripleks — Struga Nartska

Više od 35 godina iskustva, 20+ certifikata i stotine izvedenih projekata diljem Hrvatske i Europe.

Vrsta

Stambena izgradnja

Datum završetka

Zima 2026.

Lokacija

Općina Rugvica

Pregled

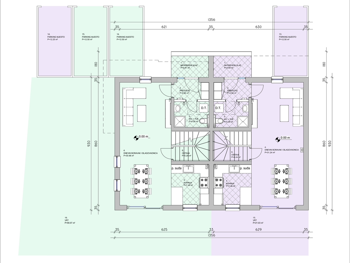
Pet modernih dvoetažnih kuća u nizu — naš najveći stambeni projekt do danas. Svaka jedinica nudi 110–115 m² stambene površine uz ukupnu korisnu površinu od 121–134 m² koja uključuje privatni vrt i parking. Projekt je u završnim radovima, a useljenje je planirano za zimu 2026.

Izazov

Izgradnja pet usklađenih stambenih jedinica koje moraju funkcionirati kao cjelina, a istovremeno svakom stanaru pružiti osjećaj privatnog doma. Svaka kuća trebala je imati jasno definiran vanjski prostor, kvalitetnu izvedbu u svim detaljima i premijum opremu — a sve to po cijeni dostupnoj stvarnim kupcima, ne samo investitorima.

Pristup

Projekt vodimo po sistemu ključ u ruke — od projektne dokumentacije i ishođenja dozvola do završnih radova i primopredaje. Koristimo isključivo provjerene materijale i certificirane građevinske sustave. Svaki detalj — od konstrukcije do fasade i unutarnje obrade — prolazio je interni nadzor kvalitete kako bismo osigurali dugotrajnost i standard koji nosimo u svakom projektu.

Rezultat

Projekt je u završnoj fazi. Dvije od pet jedinica još su dostupne za kupnju po cijeni od 2.300 €/m² s PDV-om — vrhunska kvaliteta po ispodprosječnoj cijeni. Gradimo da traje. Dođite i uvjerite se sami.

Zanima vas jedna od preostalih jedinice u našem stambenom kompleksu? Kontaktirajte nas

Slanjem upita prihvaćate naše uvjete korištenja i politiku privatnosti.

Kvaliteta i Certifikati

Naš tim čine stručno osposobljeni radnici s položenim ispitima i važećim certifikatima za:

  • fasaderske radove
  • soboslikarsko-ličilačke radove
  • montažu i demontažu skele
  • zidarske radove
  • hidroizolacije (cementne i folijske – ravni krovovi i terase)

Kontinuirano ulažemo u edukaciju i usavršavanje, posebno u području izolacijskih sustava, kroz školovanja u Hrvatskoj, Bosni i Sloveniji, u suradnji s renomiranim proizvođačima kao što su PCI / BASF / Sika.

© 2026 – Made with c☕ffee by riot.hr